3-Zimmer DG-Eigentumswohnung mit Balkon und Stellplatz
69221 Dossenheim, Dachgeschosswohnung zum Kauf
Kontaktdaten
-
NameFrau Tanja Stöhr
-
AdresseKirchstr. 2
69221 Dossenheim -
E-Mail Zentrale
-
E-Mail Direkt
-
Tel. Zentrale
-
Mobil
Objektdaten
-
Objekt IDST-851-26
-
ObjekttypenDachgeschosswohnung, Wohnung
-
AdresseSchriesheimer Str. 39
69221 Dossenheim -
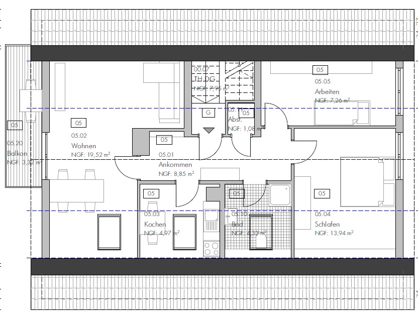
Wohnfläche ca.63 m²
-
Zimmer3
-
Schlafzimmer2
-
Badezimmer1
-
HeizungsartZentralheizung
-
Wesentlicher EnergieträgerGas
-
Zustandgepflegt
-
Statusvermietet
-
Stellplätze gesamt1
-
Stellplatz1 Stellplatz
-
Käuferprovision1,785% inkl. MwSt. des notariell beurkundeten Kaufpreises
-
Mieteinnahmen (Ist)9.792,00 EUR pro Jahr
-
Kaufpreis269.000 EUR
Ausstattung / Merkmale
- ✓ Einbauküche
- ✓ Fliesenboden
- ✓ Keller
- ✓ Parkettboden
Energieausweis
-
EnergieausweistypVerbrauchsausweis
-
Gültig bis18.03.2036
-
GebäudeartWohngebäude
-
Baujahr lt. Energieausweis1967
-
PrimärenergieträgerGas
-
Endenergieverbrauch115,80 kWh/(m²·a)
-
EnergieeffizienzklasseD
Objektbeschreibung
Beschreibung
Zum Verkauf steht eine Dachgeschoss-Wohnung in einem gepflegten 4-Familienhaus in idyllischer und ruhiger Feldrandlage.
Die Wohnung verfügt über einen Stellplatz sowie ein eigenes Kellerabteil und bietet somit praktischen Stauraum. Ebenso gehört die Einbauküche zur Wohnung.
Ein Waschmaschinenanschluss ist in der Wohnung vorhanden. Zusätzlich steht im Keller ein gemeinschaftlicher Wasch- und Trockenraum für alle Bewohner zur Verfügung.
Die direkte Nähe zur Natur bietet ein naturnahes Wohnumfeld – ideal zum Spazieren und Genießen, ein Ort mit hoher Lebensqualität.
Seit 01.11.2022 ist die Wohnung vermietet, letzte Mieterhöhung war zum 01.03.2026: jetzige Kaltmiete beträgt 816,00€.
Gemäß Teilungserklärung ist der Einbau einer Klimaanlage möglich.
Modernisierungen in der Wohnung:
2017: Dachfenster + Hitzeschutzmarkise, Wohnungseingangstüre. In 2014 wurde das Bad saniert.
Allgemeine Modernisierungen im Haus:
1994 Dach (eingeziegelt + gedämmt)
2009 Viessmann Gasbrennkessel getauscht
2022 Balkone saniert
2023 Fester + Kippfenster im Keller
2026: Erneuerung des Zählerschranks (bereits durchgeführt)
2026: Teilweise Erneuerung der Stromleitungen im Keller (bereits durchgeführt)
2026: Neubau der Kellerräume (bereits fertiggestellt)
Sonstige Informationen
Vielen Dank für Ihr Interesse an diesem Verkaufsobjekt.
Besichtigungen sind ausschließlich nach vorheriger Terminvereinbarung mit uns möglich.
Bei Abschluss eines notariellen Kaufvertrages, der durch Nachweis und/oder Vermittlung der Stöhr- Immobilien GmbH zustande kommt, fällt eine Käuferprovision in Höhe von 1,785% inkl. MwSt. (entspricht 1,5% zzgl. 19% MwSt.) des im notariellen Kaufvertrag festgehaltenen Kaufpreises an.
Alle Angaben beruhen auf den Informationen des Eigentümers. Für deren Richtigkeit und Vollständigkeit übernehmen wir keine Gewähr.
www.ich-schwör-auf-stöhr.de
Lage
Dossenheim liegt malerisch am Fuße des Odenwaldes, nur wenige Kilometer nördlich von Heidelberg. Durch die Anbindung an die A5 sind die Metropolregion Rhein-Neckar sowie Mannheim und Ludwigshafen schnell erreichbar. Die Straßenbahnlinie 5 verbindet Dossenheim im 10-Minuten-Takt mit Heidelberg, Weinheim und Mannheim, die Heidelberger Innenstadt ist in ca. 15 Minuten zu erreichen. Auch per Fahrrad ist Heidelberg gut erreichbar.
Wohnqualität:
Die Gemeinde zeichnet sich durch eine hohe Lebensqualität aus. Dossenheim bietet eine ruhige, familienfreundliche Atmosphäre mit modernen Wohnanlagen und charmanten Altbauten. Das gepflegte Umfeld und die gute Nachbarschaft sorgen für eine angenehme Wohlfühlatmosphäre. Zudem sind alle nötigen Infrastrukturen vorhanden, darunter Einkaufsmöglichkeiten, Restaurants und Cafés.
Freizeit und Erholung:
Für Naturliebhaber ist Dossenheim ein Paradies. Zahlreiche Wander- und Radwege im Odenwald sowie der nahegelegene Neckar bieten zahlreiche Freizeitmöglichkeiten wie Kanufahren oder Radfahren. Lokale Sportvereine und Freizeitangebote sorgen für Abwechslung und gesellige Stunden.
Bildung und Kultur:
Dossenheim bietet ein gutes Bildungsangebot mit Kindergärten, Grundschulen und weiterführenden Schulen in der Umgebung. Die Nähe zu Heidelberg ermöglicht zudem den Zugang zu renommierten Hochschulen und Bildungseinrichtungen. Kulturell gibt es regelmäßige Veranstaltungen, Feste und ein aktives Vereinsleben, das den Austausch und das Gemeinschaftsgefühl fördert.
Fazit:
Dossenheim vereint naturnahe Lage mit urbanem Lebensstil und ist der ideale Wohnort für Familien, Paare und Singles, die Wert auf eine hohe Lebensqualität legen. Dossenheim freut sich darauf, Sie willkommen zu heißen.
Kindergarten 300 m | Grundschule 530 m | Realschule 2,31 km | Gymnasium 2,37 km | Flughafen 11,67 km | Fernbahnhof 5,35 km | Autobahn 2,07 km | Zentrum 5,23 km | Bus 150 m | Einkaufsmöglichkeiten 2,52 km | Gaststätten 330 m
Schriesheimer Str. 39, 69221 Dossenheim, Deutschland (Größere Karte ansehen)














